Milyen a hely és mihez ideális?

Tágas & igényes. Foglalható egyszeri és rendszeres programokra is: oktatásokra, kurzusokra, tréningekre, workshopokra, előadásokra, kultúrált családi, baráti összejövetelekre.

Berendezés és technika

A rendezvény helyszín összterülete 210m2, aminek a túlnyomó része egy légtérben van. 

Mennyibe kerül?

Napszakhoz igazított hétköznapi, illetve hétvégi óradíjak

Állandó programjaink

Gyermek szülinapi zsúr programcsomagok, illetve családi és felnőtt kvíz és „szabaduló” játékprogramok

A leggyakoribb kérdések

Összegyűjtöttük a legtöbbször feltett kérdéseket & a válaszainkat 

Kapcsolat

Ha konkrét elképzelésed vagy kérdésed van, 
akkor írj nekünk vagy hívj minket!

Milyen a hely & mihez ideális?

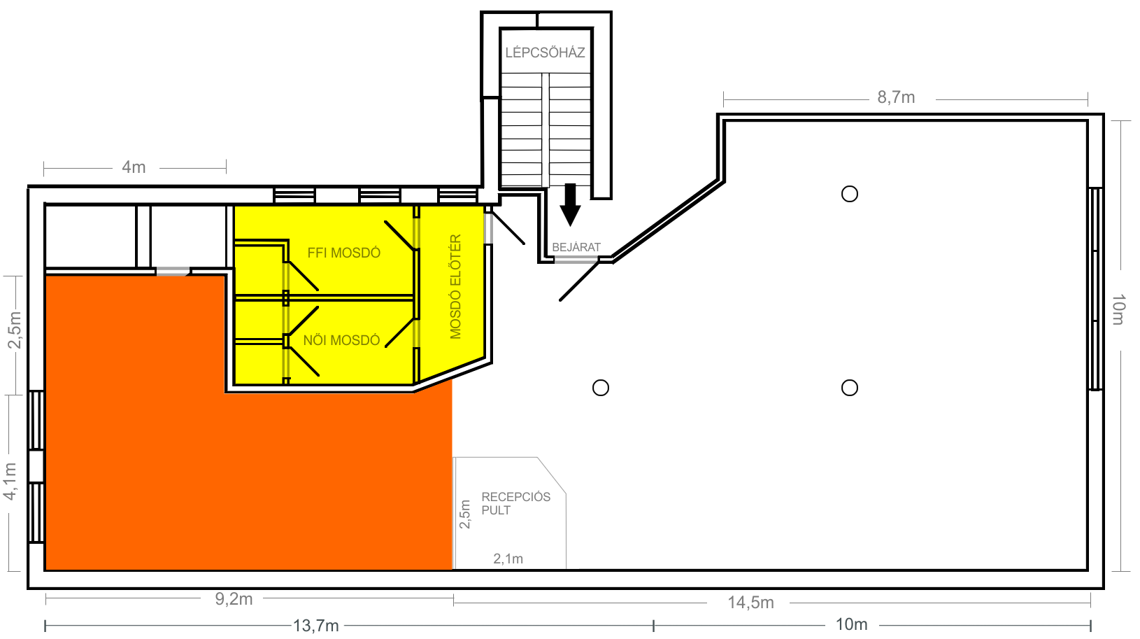
Az épület első emeletén található közel 210m2-es tágas és igényesen kialakított terem két részből áll: 

  • egy körülbelül 140m2-es parkettás részből - ez az előtér, recepció és a mozgástér (fehér terület), 
  • és a körülbelül 50m2-es szőnyeges társalgó térből (narancssárga terület). 

A helyszín túlnyomó része egyterű, válaszfalak nélkül. Ez alól kivétel természetesen a tágas mosdó előtér és az abból nyíló női és férfi mosdó (citromsárga terület). 

- Kattints a fotóra nagyobb képért  -

Berendezés és technika

A berendezés variálható, könnyen mozgatható: 30 háttámlás szék, 25 puff, 4db 6 személyes nagyméretű (90x190cm) asztal, 12db alacsonyabb (55x55) kisasztal, és több mint 8 méteres mobil tükörfal.

  • vezetékes és bluetooth kihangosítás,
  • választható mennyezeti világítás, LED világítás színbeállítással vagy hangulatvilágítás állólámpákkal,
  • projektoros kivetítés (felár ellenében)
  • wifi
  • flipchart tábla

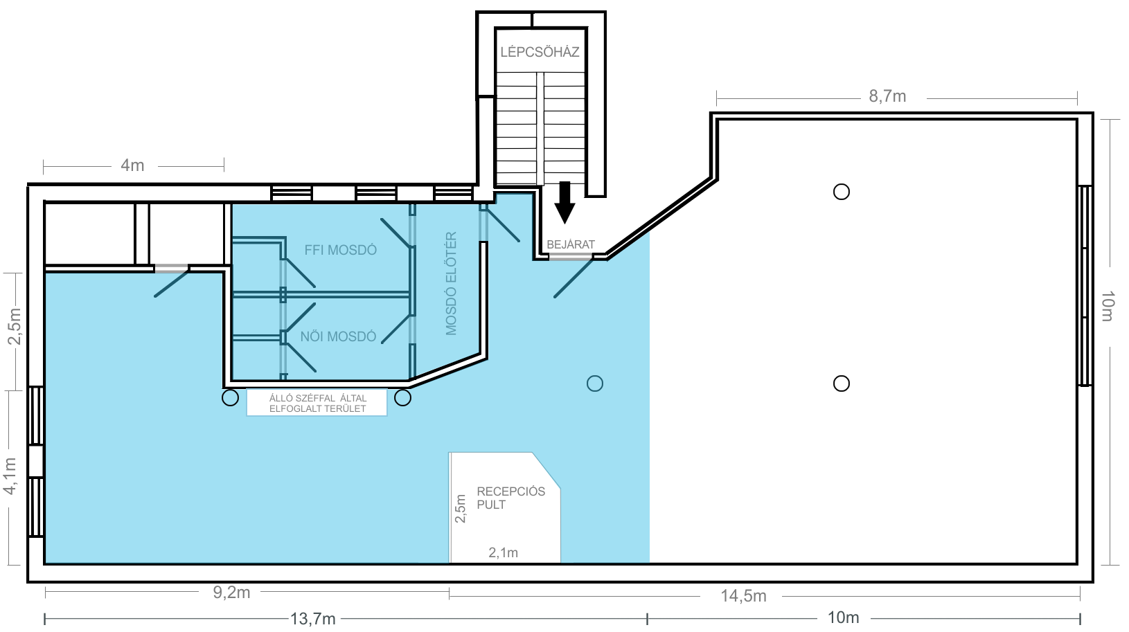
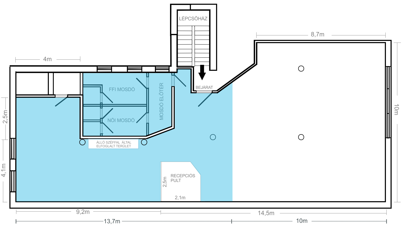
Családi, baráti rendezvények esetén az alaprajzon kékkel jelzett terület, a TÁRSALGÓ TÉR bérelhető, ezt a területet rendezzük be asztalokkal, székekkel a tervezett létszámra. Az egyterű rendezvényhelyszín parkettás része, a MOZGÁSTÉR ilyenkor leválasztásra kerül. 

Szülinapi zsúr program foglalása esetén az alaprajzon kékkel jelzett területet asztalokkal és székekkel , a fehérrel jelzett mozgásteret pedig a választott játékos vagy táncos program kellékeivel rendezzük be.

Oktatások, tréningek, bemutatók, előadások esetén a létszámtól függően választható a MOZGÁSTÉR (az alaprajzon fehér terület) vagy a TÁRSALGÓ TÉR (az alaprajzon kék terület). Ha a létszám a MOZGÁSTÉR választását indokolja, akkor a TÁRSALGÓ TERET is a szervező rendelkezésére bocsátjuk, így külön oktatási „tér” és külön társalgó, étkező alakítható ki a szervező elképzelése szerint.

- kattints a fotókra nagyobb képekért - 

Mennyibe kerül?

Részletek

Terembérleti díjak: Edzések és táncórák

Részletek

Terembérleti díjak: Workshop-ok, táborok, oktatások, 
tréningek, előadások díjai

Részletek

Családi-baráti összejövetelek terembérleti díjai

Szülinapi zsúr programcsomagok

A választható gyermek szülinapi zsúr programcsomagok részletei megtalálhatók a Frenergy Fit Stúdió facebook oldalán az alábbi linken, illetve kérésre szívesen küldünk tájékoztatót a részletekről.

A Frenergy Fit Stúdió facebook oldala

Kérdések és válaszok

Vihetjük, amit eszünk és iszunk?

Igen. A teremNeked a helyszínt biztosítja asztalokkal, székekkel. Különdíj ellenében dekorációt is tudunk biztosítani.

Étkészletet és evőeszközöket, poharakat nekünk kell vinni?

Igen. Mi a helyet biztosítjuk asztalokkal, székekkel. Kivétel ez alól a Frenergy Fit szülinapi zsúr programcsomagja, ami tartalmazza a szülinapi játékos és/vagy táncos programot, valamint fiús, lányos vagy uniszex terem dekorációt és teljes terítéket: műanyag evőeszközöket, szalvétát, valamint színes papírtányérokat, papírpoharakat és kis műanyag tálalókat.

Hűtő van?

Igen, 240-literes (közepes méretű) hűtőgép van a társalgóban.

Mi történik, ha nem sikerül időben befejezni a programot, amire kibéreltük a helyet?

Ahhoz, hogy a következő program időben elkezdődhessen, fontos tartanunk magunkat a megbeszélt időpontokhoz. Nyílt végű foglalás esetén ettől el tudunk térni.

Mi az a nyílt végű foglalás?

Ha egy rendezvény az adott napon az utolsó program a teremben, akkor lehetőség van arra, hogy csak egy körülbelüli befejezési időpontot jelöljünk meg, azaz addig folytatódjon a rendezvény, ameddig a szervező jónak látja. Erről a szervezés során beszéljük meg a részleteket. Fél- és egészórás hosszabbítás esetén arányosan hozzáadódik a terembérlés díjához a hosszabbítás díja. Természetesen akár többórás hosszabbításról is lehet szó, főleg egy késő délután kezdődő, estébe, éjszakába nyúló összejövetel esetén.

Hogyan értendő, hogy „a maximális - kényelmes - befogadóképesség: 25 fő”?

25-en tudnak asztalhoz ülni a társalgóban, ha a társalgó teljes hosszában asztalokat helyezünk el. A mozgástér 100 négyzetméteres területének befogadóképességét pedig a foglalkozás, edzés, oktatás jellege határozza meg.

Saját hangtechnika hozható?

Sajnos nem. Van egy maximális megengedett hangerő, aminek a betartására szükség van, de ez egy egészséges „szórakozásra alkalmas” hangerő. A helyszíni látogatás során megmutatjuk.

Marad valaki a stúdió személyzetéből a helyszínen a rendezvényünk alatt?

Családi, baráti összejövetel esetén egy fő a stábunkból a recepciós pultban marad(-hat). A recepciós pultból nem látható a társalgó tér, így láthatatlanok és észrevétlenek maradunk a rendezvény alatt, hacsak nincs szükség a segítségünkre.

Hogyan rendezhető a számla?

Készpénzzel a program végén vagy átutalással legkésőbb a programot megelőző napon.

Hol lehet parkolni?

A kerítésen belüli terület is rendelkezésre áll, illetve az utcán is ingyenes a parkolás.

Ha nem találtam választ a kérdésemre?

Lejjebb görgetve megtalálod az elérhetőségeinket. Nagyon szívesen válaszolunk telefonon, e-mail-ben, sms-ben és messenger üzenetben érkező kérdésekre is.

Vannak teremhasználati szabályok, amiket jó, ha tisztázunk előre?

A teremhasználatnak néhány egyszerű szabálya van, ezeket lejjebb görgetve találod.

Teremhasználati szabályok

A terem használatának csak néhány egyszerű szabálya van, ezekre Vendégeink és a berendezés biztonsága érdekében van szükség. 

Étel és ital fogyasztása csak a társalgó térben megengedett. A mozgástérre vizes palackok sem vihetők. A foglalkozások közben tartott 1-2-perces szünetekben van lehetőség inni (vagy enni) a társalgóban. 

Váltócipő használata kötelező.*  A mozgástéren a parketta épségének megóvása érdekében van szükség erre. *A padlószőnyeges társalgó térben - családi, baráti rendezvény esetén - el tudunk tekinteni ettől, de ebben az esetben 5.000,-Ft egyszeri szőnyegtisztítási díjat számolunk fel. 

A mobil tükörfal elemeit csak a stúdió személyzete mozgathatja. 

A stúdióban található sporteszközök és kiegészítők csak előzetes egyeztetéssel használhatók, mivel a legtöbb eszköz nem a stúdió tulajdona, hanem az edzőkhöz tartozik.

Kapcsolat

Ha konkrét elképzelésed vagy kérdésed van,
akkor írj nekünk vagy hívj minket!

teremNeked
    Székesfehérvár, Gyár u. 23. 1. emelet

    This email address is being protected from spambots. You need JavaScript enabled to view it.

    Georg János (+36) 30 96 93 583

    www.facebook.com/teremNeked